Helle Familienwohnung mit Garten*
Beschreibung
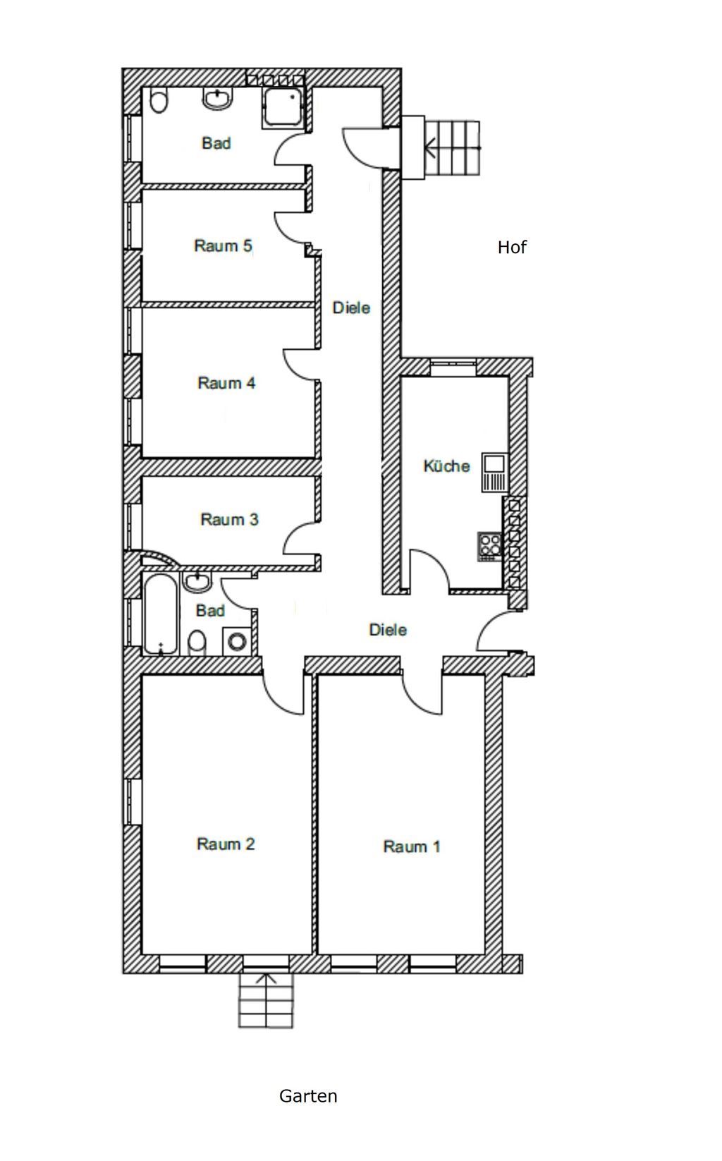
Diese schöne, helle Altbauwohnung befindet sich im Hochparterre eines Berliner Altbaus und erstreckt sich vom Vorderhaus in den Seitenflügel. Der vor der Wohnung sich befindende Garten steht dem Mieter zur alleinigen Nutzung zur Verfügung.
In der sanierten Wohnung findet man 2 große Räume mit angrenzendem Garten nach vorne und 3 weitere, kleinere Räume im Seitenflügel. Eine Küche zum Kochen und Essen, sowie ein Wannenbad und ein Duschbad ergänzen den perfekten Grundriss der Wohnung.
Dabei gehen alle Räume separat vom Flur ab.
Die Wohnung hat einen Zugang vom Hausflur und direkt vom Hof.
Es gibt zudem noch einen hübschen Hof, der auch wirklich von der netten Nachbarschaft genutzt wird.
Durch den Zuschnitt ist die Wohnung gut geeignet für eine Familie.
Lage
Das Objekt befindet sich in einer gut angebundenen, beliebten und grünen Wohnlage in Berlin.
Öffentliche Verkehrsmittel und Einkaufsmöglichkeiten finden sich in fußläufiger Entfernung.
Ausstattung
Ausgestattet mit:
-abgezogenen Dielenböden
-geputzte Wände
-Wannenbad mit Fenster
-Duschbad mit Fenster
-Garten zur alleinigen Nutzung
-nach Bedarf ein Kellerraum
-Gasetagenheizung (Heizkosten sind noch nicht in den Nebenkosten enthalten)
Sonstiges
Überzeugen Sie sich von der Attraktivität dieser Wohnung vor Ort.
Die Berliner Raumpiloten freuen sich über eine E-Mail zur Vereinbarung eines Besichtigungstermines und Beantwortung von weiteren Fragen.
- WG-geeignet
- Gartennutzung
Anbieter
Frau Ute Costaz
Berliner Raumpiloten Costaz & Wald GbR
Straßmannstrasse 39
10249 Berlin
