Helle 2,5 Zimmer-Wohnung mit Loggia im 1.OG beim Humboldthain!
Beschreibung
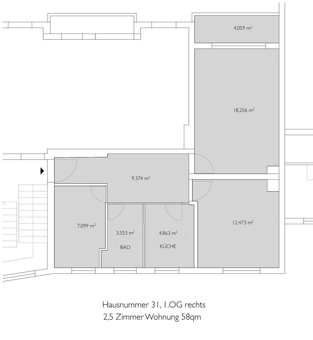
Diese schöne Wohnung liegt im 1. OG des Hauses.
Ein großer Wohnraum mit Loggia geht nach vorne raus und zwei weitere Räume zum Hof. Die Küche ist mit einer Einbauküche ausgestattet. Das kleine Duschbad ist hell und mit einem Fenster versehen und bietet noch Platz für eine Waschmaschine.
Die Wohnung hat viel Tageslicht zu bieten und ist vorne nach Südosten und hinten nach Nordwesten ausgerichtet.
Die Bilder stammen teilweise aus der identischen Wohnung (Grundriss) des Erdgeschosses, da diese Wohnung noch bis Ende April vermietet und möbliert ist.
Lage
Diese Wohnlage ist sehr zentral gelegen, direkt um die Ecke des Volksparks Humboldthain und der gleichnamigen S-Bahnstation. Läden des täglichen Bedarfs, aber auch Cafés und Restaurants finden sich fußläufig.
Ausstattung
Ausgestattet mit:
-perfektem Grundriss mit 3 separaten Räumen
-Loggia in Südostausrichtung
-EBK in der Küche
-Helles Duschbad mit Waschmaschinenstellplatz
-Flur mit viel Platz
-Kunststoffisolierfenster
-Fliesen im Flur/Bad/Küche
-Laminat in den Wohnräumen
Sonstiges
Es handelt sich hier um eine Indexmiete mit einer Limitierung der Mietanpassung auf max. 3% p.a..
Die Berliner Raumpiloten freuen sich über eine E-Mail zur Vereinbarung eines Besichtigungstermins und Beantwortung von weiteren Fragen.
Keine weiteren Angaben zur Ausstattung.
Anbieter
Frau Ute Costaz
Berliner Raumpiloten Ute Costaz
Kopenhagener Str. 75
10437 Berlin
