Schöne Räume im Souterrain eines ruhigen Hofgebäudes! Kein gewerbliches Wohnen!
Beschreibung
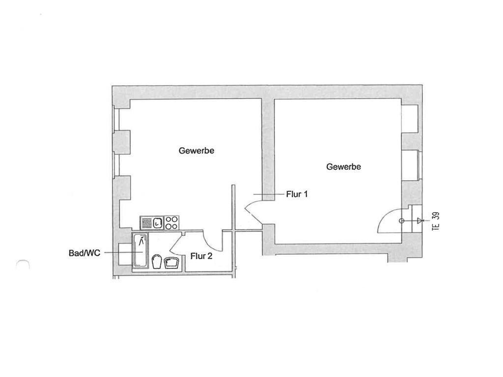
Die Gewerbefläche liegt im ruhigen, schönen Hinterhaus.
Über ein paar Treppenstufen gelangt man vom Hof in den vorderen, großzügigen Raum. Der zweite große Raum liegt direkt dahinter und verfügt ebenfalls über Tageslicht...es gibt sogar eine kleine Terrasse für die kleine Pause zwischendurch. In dem hinteren Raum kann auch eine kleine Küchenzeile angeschlossen werden.
Lage
Die Gewerbe liegt zentral zwischen der Landsberger Allee und dem Petersburger Platz in der Richard-Sorge-Strasse und ist doch sehr ruhig in einer schönen Wohnlage mit guten Einkaufsmöglichkeiten und kleinen Läden und Cafés in direkter Nachbarschaft.
Gut angeschlossen ist die Lage über den S-Bhf. Landsberger Allee und die Straßenbahnen entlang der benachbarten Petersburger Allee und Landsberger Allee.
Ausstattung
-Duschbad
-Mini-Terrasse nach hinten
-Anschlußmöglichkeit einer Pantryküche im hinteren Bereich
-Zentralheizung
Sonstiges
Überzeugen Sie sich von der Attraktivität der Fläche vor Ort.
Die Berliner Raumpiloten freuen sich über einen Anruf oder eine E-Mail zur Vereinbarung eines Besichtigungstermins und Beantwortung von weiteren Fragen.
Keine weiteren Angaben zur Ausstattung.
Anbieter
Frau Ute Costaz
Berliner Raumpiloten Ute Costaz
Kopenhagener Str. 75
10437 Berlin
